Ville nouvelle de Zenata

Mission d’étude urbanistique pour l’aménagement de la ville nouvelle de Zenata
Plan d’aménagement général approuvé en 2015, décliné en suite en secteurs opérationnels et en études architecturales
Maîtrise d’œuvre de niveau AVP de l’espace public au sein de la zone Ouest de Zenata (secteur Nord et secteur Sud)
Maîtrise d'œuvre relative à l'aménagement urbain et paysager de l'axe métropolitain de la ville nouvelle de Zenata, en cours
Certification
«ECO-CITY LABEL»
Superficie
1 670 ha
620 ha Secteur Ouest
380 ha maitrise d’oeuvre axe métropolitain
MOA
SAZ - Société d’Aménagement de Zenata
MOE
Urbanistes :
Reichen et Robert & Associés International
Carta - Reichen et Robert Associés
Conception et ingénierie environnementale :
Franck Boutté Consultants
BET Mobilités : Roland Ribi & Associés
Paysagistes : Agence TER - étude urbaine ; Format Paysage - AVP
Crédits
Perspectives : Artefactory
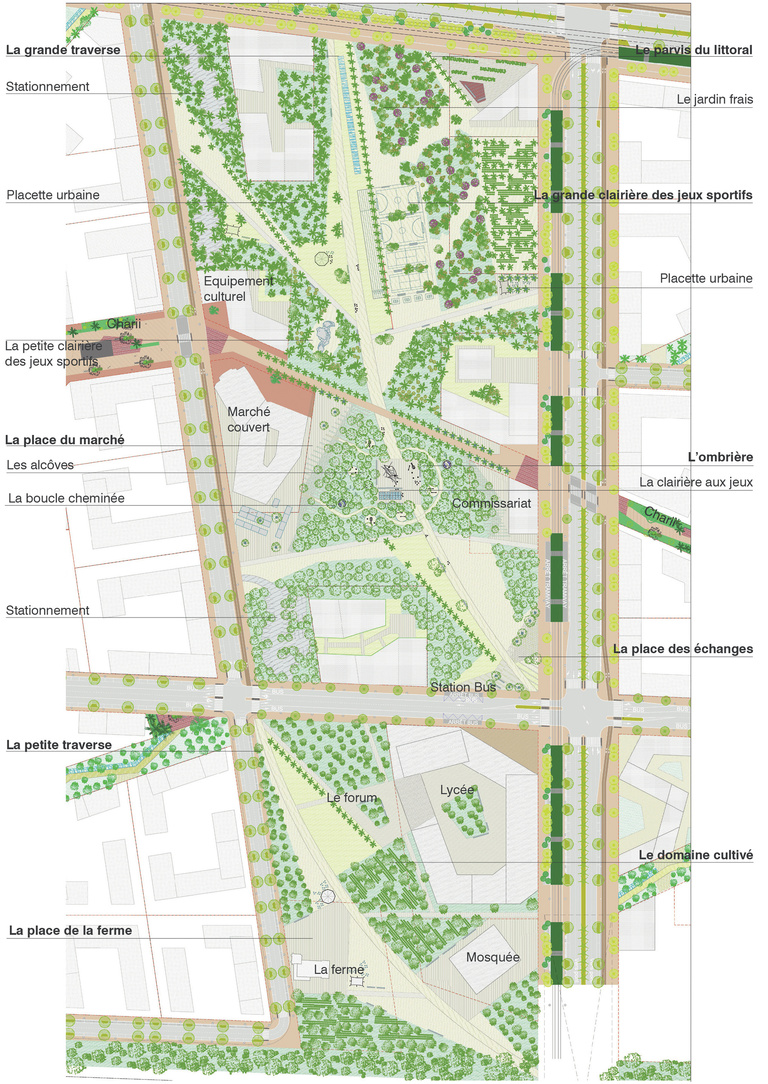
La future cité de Zenata occupe un vaste territoire de 1 670 hectares situé à la jonction entre Casablanca et Mohammedia. Le site constitue l'une des dernières grandes réserves foncières de la métropole Casablancaise.
Zenata s'articule autour d'un « axe vert » parcourant la ville sur 3,5 km. Alternative au traditionnel plan étoilé, une maille territoriale compose une première trame urbaine au sein de laquelle un maillage local composé de « rues-jardins » permet de hiérarchiser les différentes mobilités. À cela s'ajoute un plan supplémentaire intimement lié à la géographie du site. La « trame aéraulique » enrichit le tissu urbain d'un dessin conçu à partir de l'étude des vents qui parcourent le site, réguliers en période estivale, « avec une direction stabilisée dans le sens nord-sud ». L'enjeu, concernant cette trame verte, consiste à diminuer de 3 degrés la température dans les espaces publics, hypothèse testée sur un îlot démonstrateur. De la ville verte à « la ville marchable » : combiné à une grille d'équipements publics, un plan composé de voies piétonnes autonomes de 13 km de long relie les différents points névralgiques de la ville.






